Penthouse 164 B

Building 164 B, Penthouse, plans:

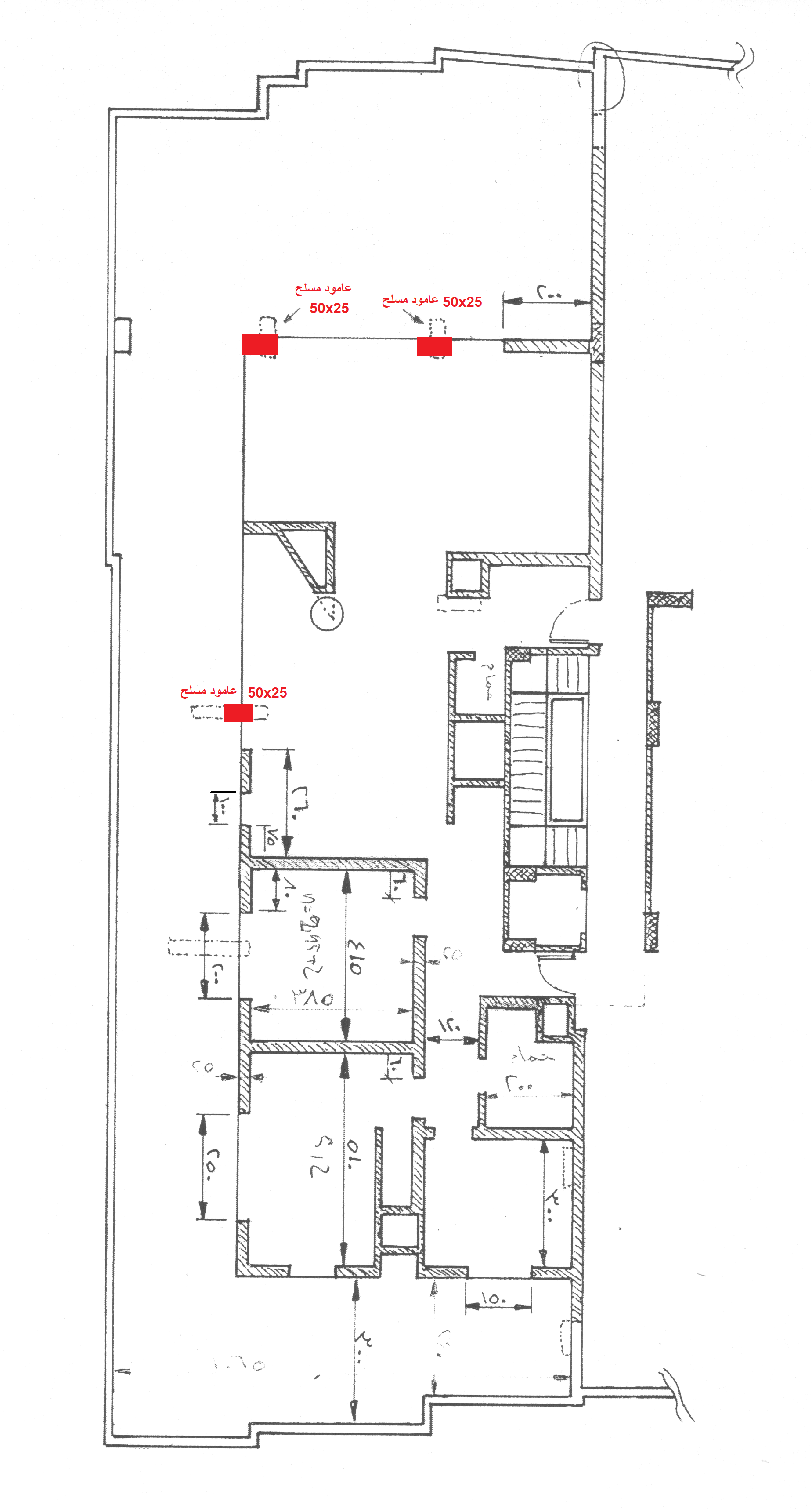
Concrete columns